Ficha
Exclusiva vivienda en alquiler situada en Lagasca
Madrid (Barrio de Salamanca) - REF. 1316

584 m2

3

4
alquiler: 22.000 €/mes
Descripción

En un edificio señorial de principios del siglo XX, completamente rehabilitado y con servicio de portería. La propiedad ha sido reformada a estrenar, combinando la elegancia clásica del inmueble con un diseño contemporáneo y calidades de primer nivel. Plano y memoria de calidades disponibles. Fotos disponibles próximamente.

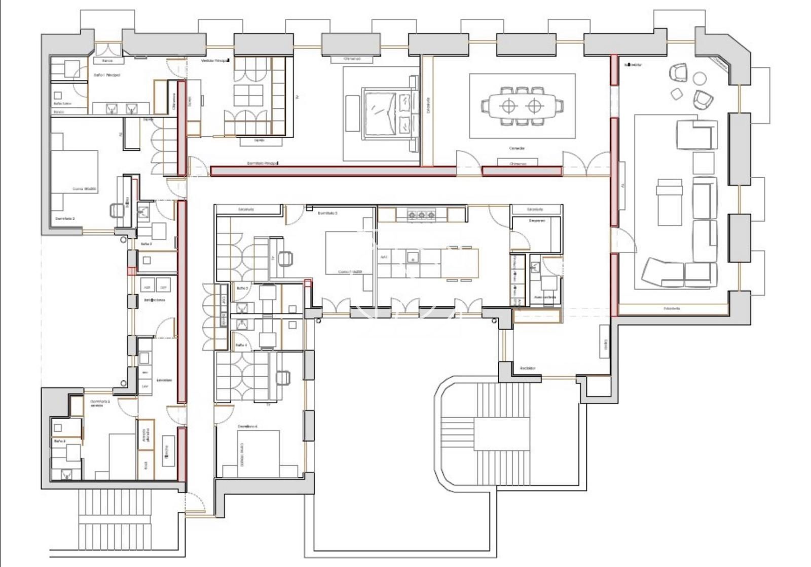
La vivienda cuenta con 584 m² construidos con comunes, de los cuales 464 m² corresponden a la vivienda y 120 m² a zonas comunes. Se trata de un piso en esquina, con una excepcional entrada de luz natural gracias a sus 8 balcones exteriores y 2 miradores, además de techos muy altos y varias chimeneas que refuerzan su carácter representativo.

Desde un amplio hall de entrada, el plano muestra una clara separación entre la zona de día y la zona de noche. La zona social se compone de un gran salón principal, comedor independiente y un estar o despacho, todos ellos exteriores y conectados entre sí, ideales tanto para la vida familiar como para la representación.

La cocina, de generosas dimensiones, está completamente equipada con electrodomésticos de alta gama, cuenta con isla central y se complementa con una lavandería independiente y zona de servicio perfectamente integrada. La vivienda dispone además de un aseo de cortesía para invitados.

La zona de descanso alberga tres amplios dormitorios, todos ellos con baño en suite y excelentes armarios, garantizando privacidad y confort. El plano refleja una distribución fluida, funcional y muy equilibrada, con amplios pasillos y espacios bien proporcionados.

Actualmente la vivienda se encuentra amueblada, ofreciendo la posibilidad de retirar el mobiliario según las necesidades del inquilino.

Una propiedad única por dimensiones, ubicación y calidad, ideal para quienes buscan una vivienda de alto standing en una de las calles más emblemáticas del Barrio de Salamanca.


Características
Precio Alquiler 22.000 €/mes
Construidos 584 m2
Útiles 464 m2
Dormitorios 3
Baños 4
Amueblado
Cocina Amueblada
Terraza
Ascensor
Calificación Energética En trámite
Conserje
Escalas de eficiencia



Tu agente
Maria Isabel Esquivel
Contáctanos

Si deseas más información sobre esta propiedad, por favor, rellena el formulario.

 Sí, he leído y/o acepto las Condiciones de uso y la Política de privacidad
Galería