Ficha
Piso en venta en calle de Alcalá
Madrid (Barrio de Salamanca) - REF. 1265

138 m2

3

3
venta: 1.645.000 €
Descripción

Alcalá, 3º planta 3º Izda.

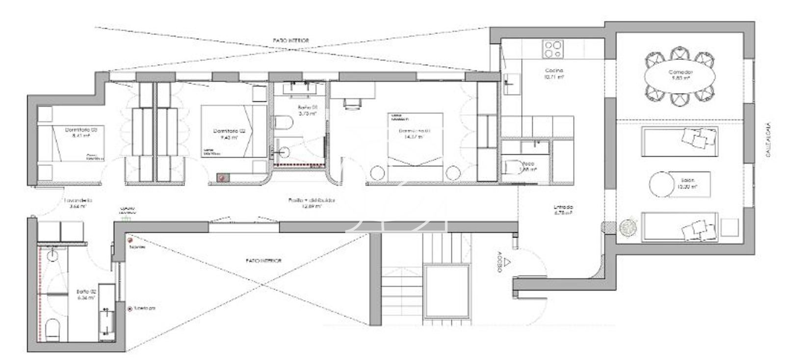
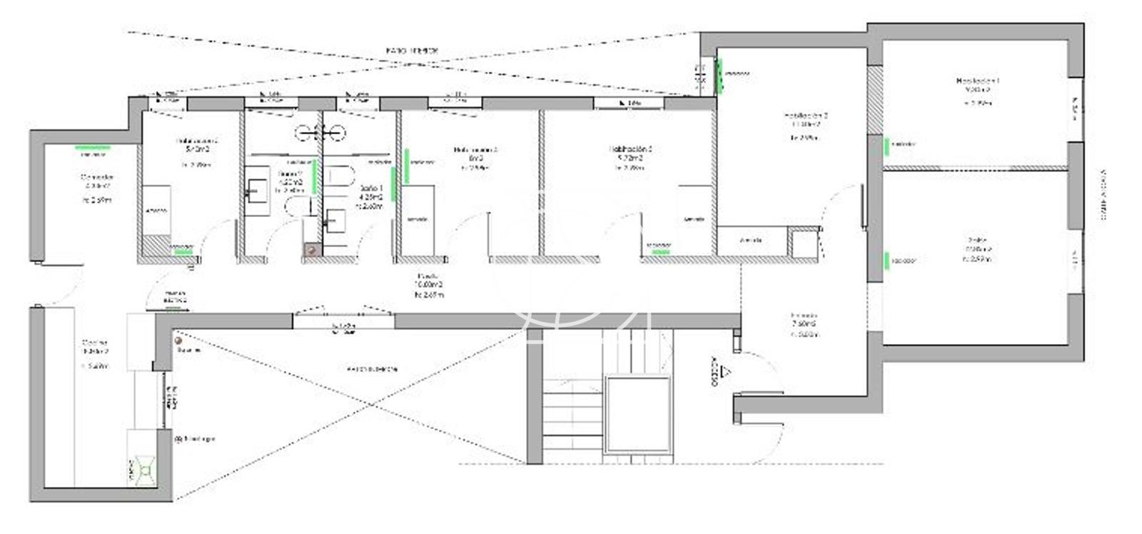
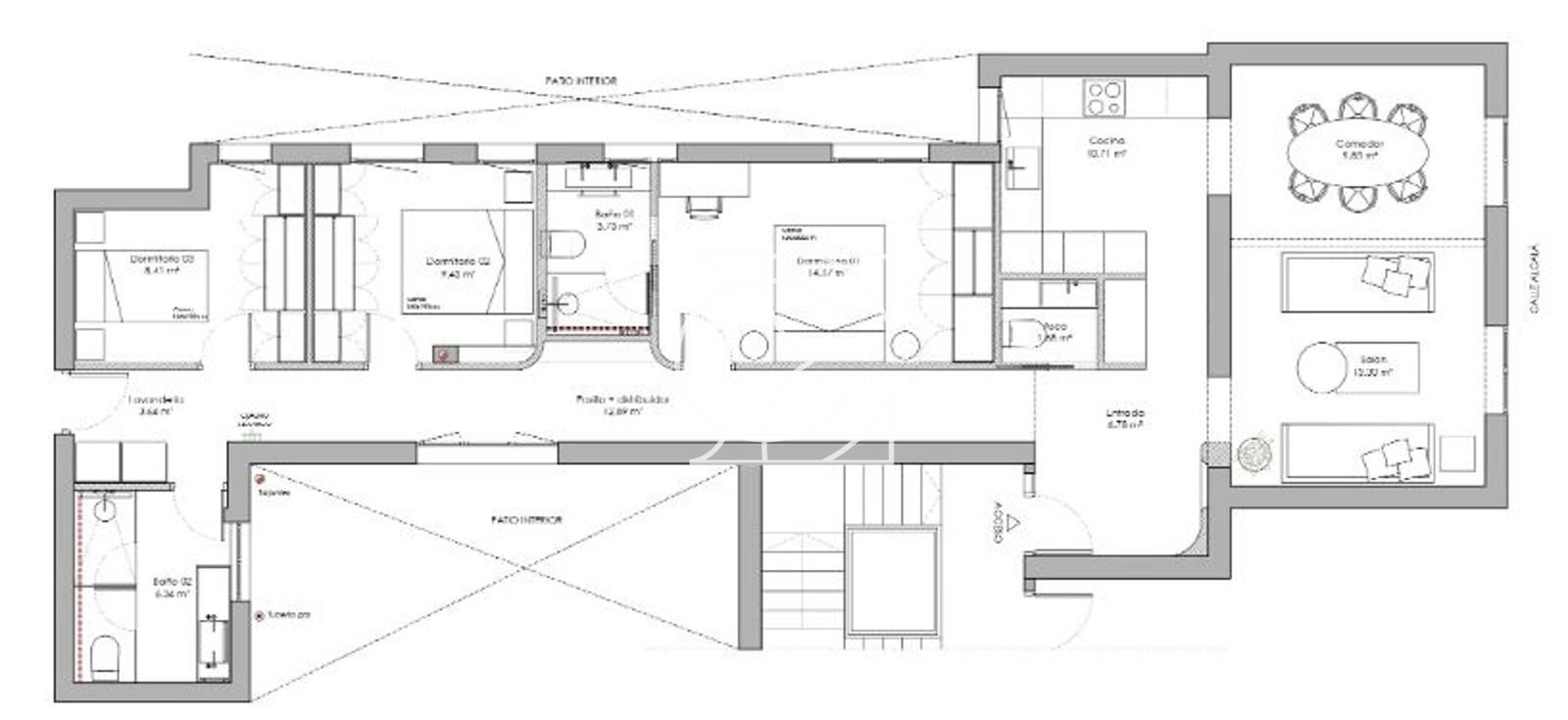
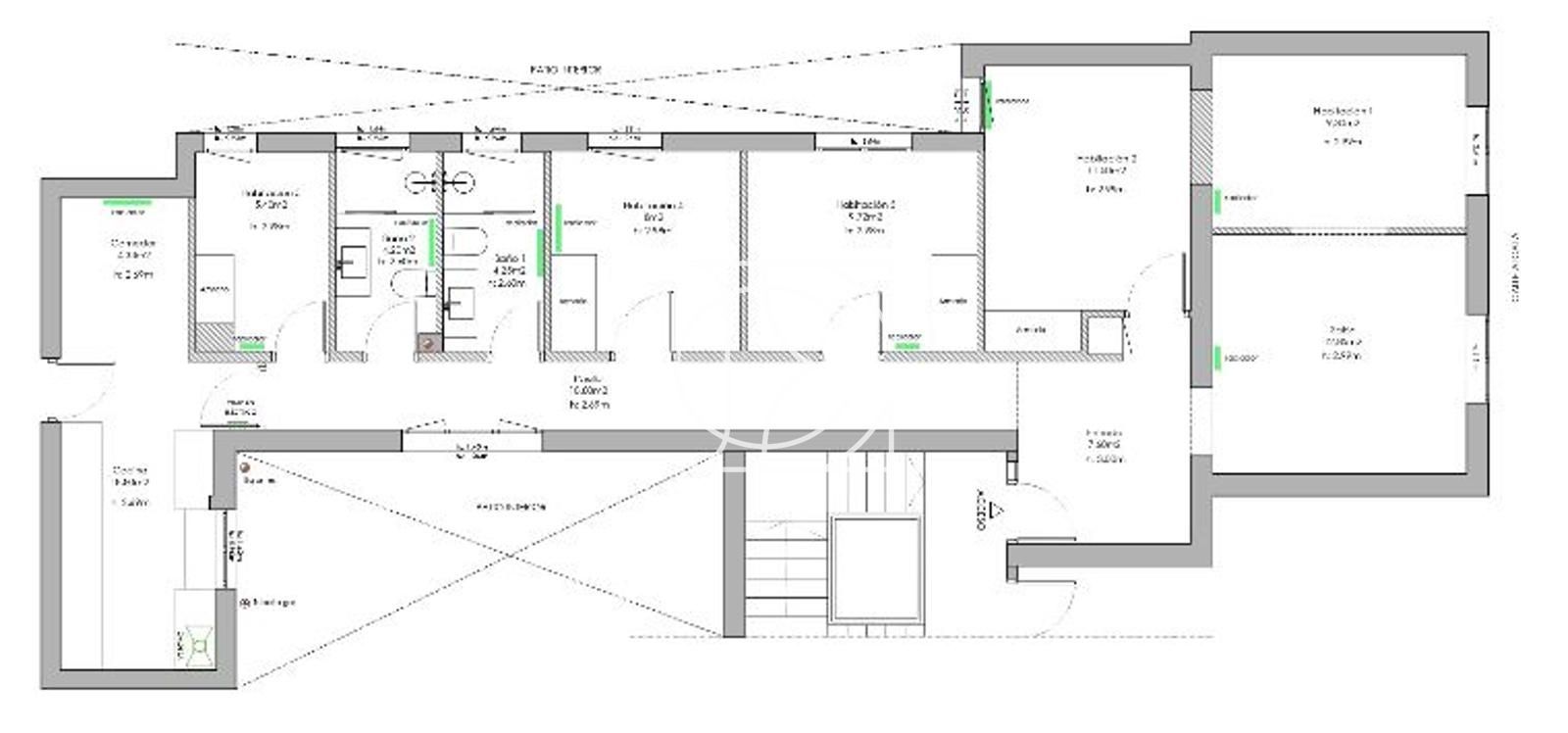
Precio: 1.645.000 € Para reforma total

Superficie: 138m2 catastrales (126m2 de vivienda + 12m2 comunes)


La propiedad se encuentra en una finca clásica, con un portal amplio, completamente accesible y con un gran diseño. Se vende con un proyecto de reforma opcional y personalizable por un precio a parte. El valor estimado del proyecto propuesto de reforma es de 226.075€, a variar según gustos y necesidades del cliente y ofrece: Hall de entrada, salón-comedor, cocina semi integrada, aseo de visitas, tres dormitorios y dos cuartos de baño completos. Las imágenes adjuntas son renders de la propuesta de reforma


IBI: 974€ / año                    Gastos de comunidad: 137€ / mes

Características
Precio Venta 1.645.000 €
Precio/m² 11.920
Gastos de comunidad 137 €
I.B.I. 974 €
Año de construcción 1929
Construidos 138 m2
Útiles 126 m2
Dormitorios 3
Baños 3
Terraza
Estado Para reforma total
Ascensor
Calificación Energética En trámite
Escalas de eficiencia



Tu agente
Maria Isabel Esquivel
Contáctanos

Si deseas más información sobre esta propiedad, por favor, rellena el formulario.

 Sí, he leído y/o acepto las Condiciones de uso y la Política de privacidad
Inmuebles similares:
 
1.325.000 €
Ref. 1342  100 m2  3  2

Exclusiva vivienda reformada en el Barrio de Salamanca – Goya, situada en cuarta planta exterior con cuatro balcones y orientación oeste. 100 m² con 3 dormitorios y 2 baños de diseño en finca señorial con ascensor. Una propiedad luminosa y sofisticada en ubicación prime de Madrid.

 
1.900.000 €
Ref. 1341  154 m2  3  3

En Marqués de Monasterio, en pleno Justicia, piso exterior de 154 m² a reformar con 3 dormitorios, 3 baños y 2 balcones en finca clásica. Incluye trastero de 31 m². Excelente oportunidad de inversión en una de las zonas prime de Madrid, presentada por Consulting Esquivel.