Ficha
Piso en venta en calle Juan de la Cierva - El Viso
Madrid (El Viso) - REF. 1291

245 m2

3

4
venta: 2.690.000 €
Descripción

Juan de la Cierva, planta 3º 

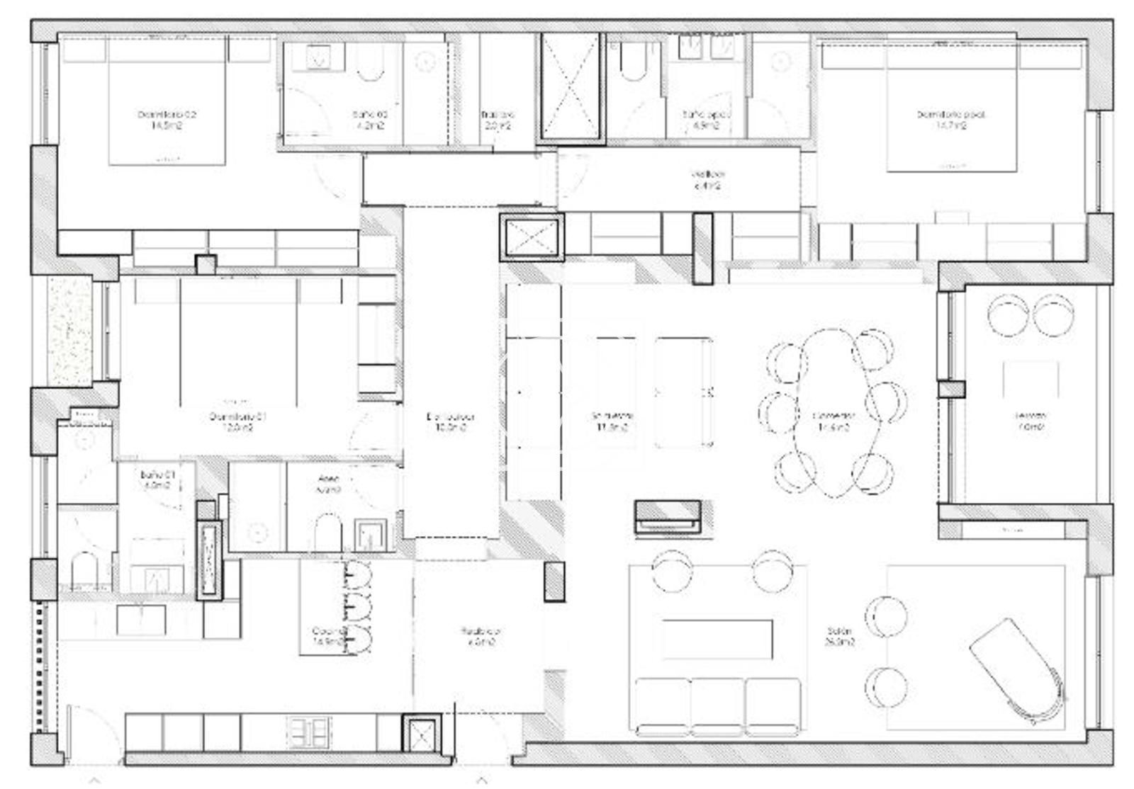
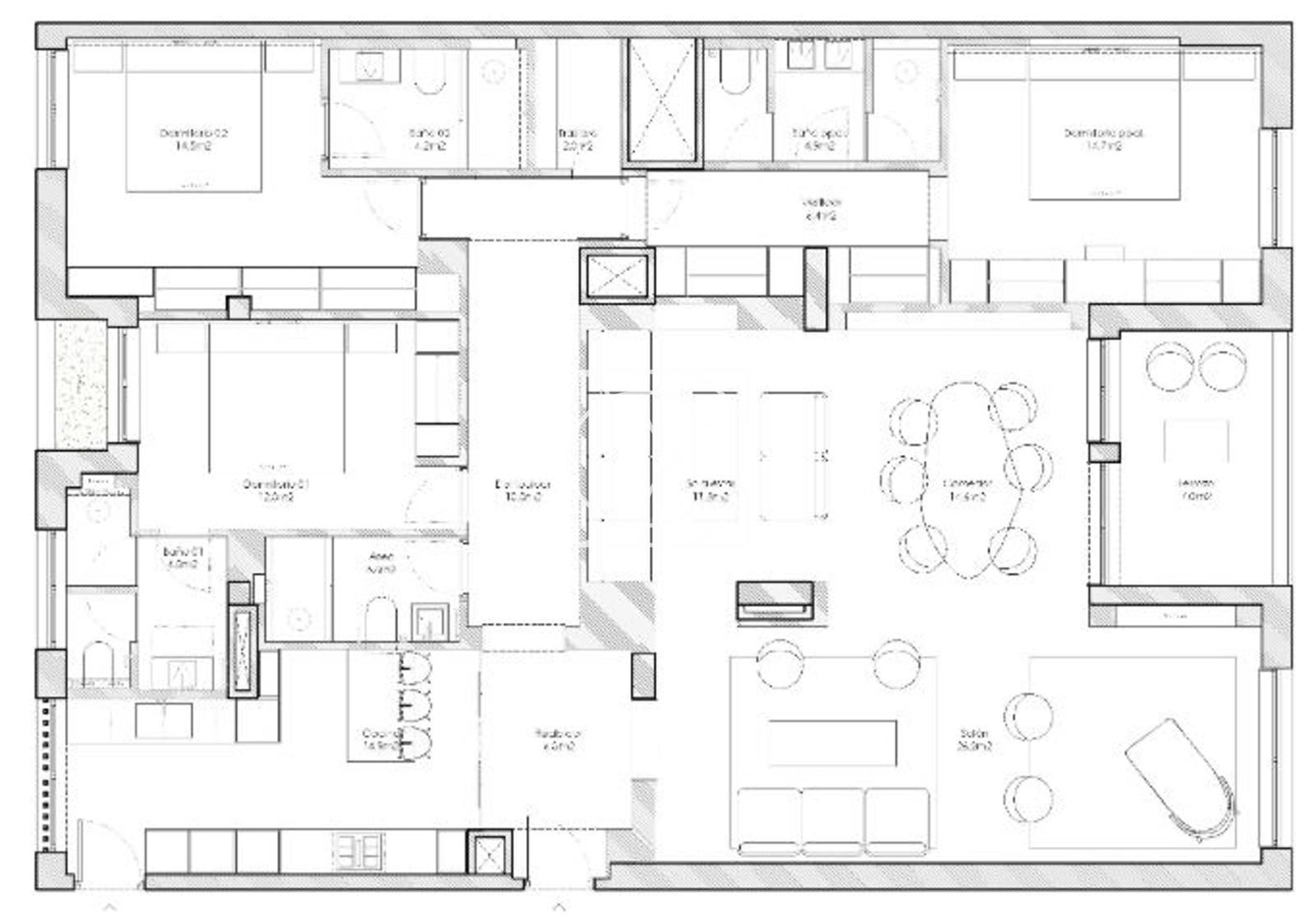
Precio: 2.690.000€ Para reforma total

Superficie: 245m2 catastrales (183m2 de vivienda  + 62m2 comunes)

Maravilloso piso en venta para reforma total, completamente exterior y con una encantadora terraza, en el edificio cuenta con doble ascensor, plaza de garaje y trastero.

Con una superficie generosa, permite configurar entre tres y cuatro dormitorios, adaptándose a las necesidades de quienes buscan un hogar funcional con posibilidad de despacho, estudio o zona de invitados. La vivienda también dispone de cuarto de servicio y cuarto de lavado. El edificio ofrece zonas comunes con jardín y área infantil, portero físico, lo que garantiza comodidad y seguridad, y su ubicación privilegiada la sitúa en una de las zonas más cotizadas y mejor comunicadas de Madrid.

Se puede adquirir un proyecto de reforma personalizable por un precio adicional, lo que convierte a esta vivienda en una excelente oportunidad para diseñar un hogar único en una de las zonas más demandadas de Madrid. Rango mínimo del proyecto de transformación: €338.595,75

IBI: 2056 € / año                 Gastos de comunidad: 771€ / mes

*Las imágenes adjuntas son renders de la propuesta de reforma

Características
Precio Venta 2.690.000 €
Precio/m² 10.980
Gastos de comunidad 771 €
I.B.I. 2.056 €
Año de construcción 1970
Construidos 245 m2
Útiles 183 m2
Dormitorios 3
Baños 4
Calefacción centralizada
Trastero
Terraza
Estado Para reforma total
Ascensor
Calificación Energética En trámite
Escalas de eficiencia



Tu agente
Maria Isabel Esquivel
Contáctanos

Si deseas más información sobre esta propiedad, por favor, rellena el formulario.

 Sí, he leído y/o acepto las Condiciones de uso y la Política de privacidad
Inmuebles similares:
 
3.150.000 €
Ref. 1355  182 m2  3  3

Calle Hortaleza, 3.150.000 €, 182 m². Vivienda exterior en chaflán con 7 balcones, 3 dormitorios y 3 baños. Reformada con diseño contemporáneo, techos altos y gran luminosidad. Ubicación prime en Justicia.

 
2.700.000 €
Ref. 1303  217 m2  3  4

Hall de entrada, salón-comedor, cocina americana con isla, baño completo de visitas, cuarto de lavandería, tres dormitorios con tres cuartos de baño en suite, portero