Ficha
Elegante vivienda reformada en Calle Villanueva con Claudio Coello 3º planta
Madrid (Barrio de Salamanca) - REF. 1315

224 m2

3

3

1
venta: 4.500.000 €
alquiler: 11.000 €/mes
Descripción

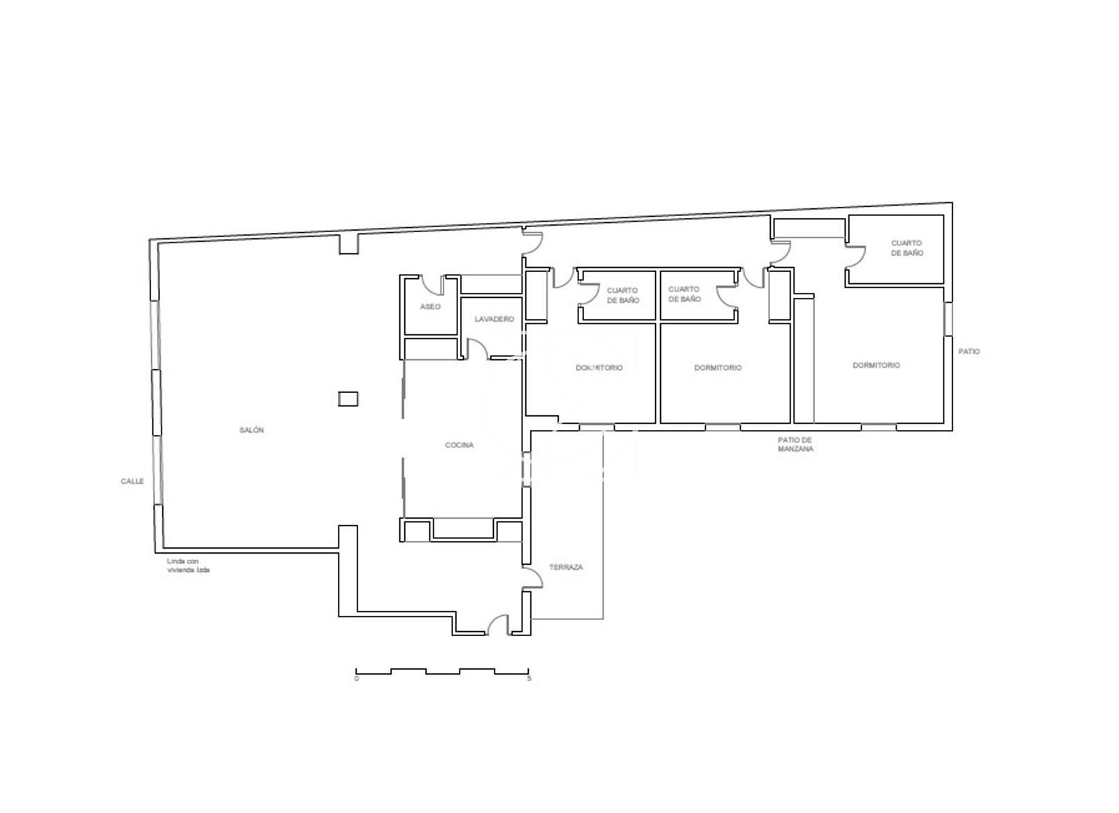
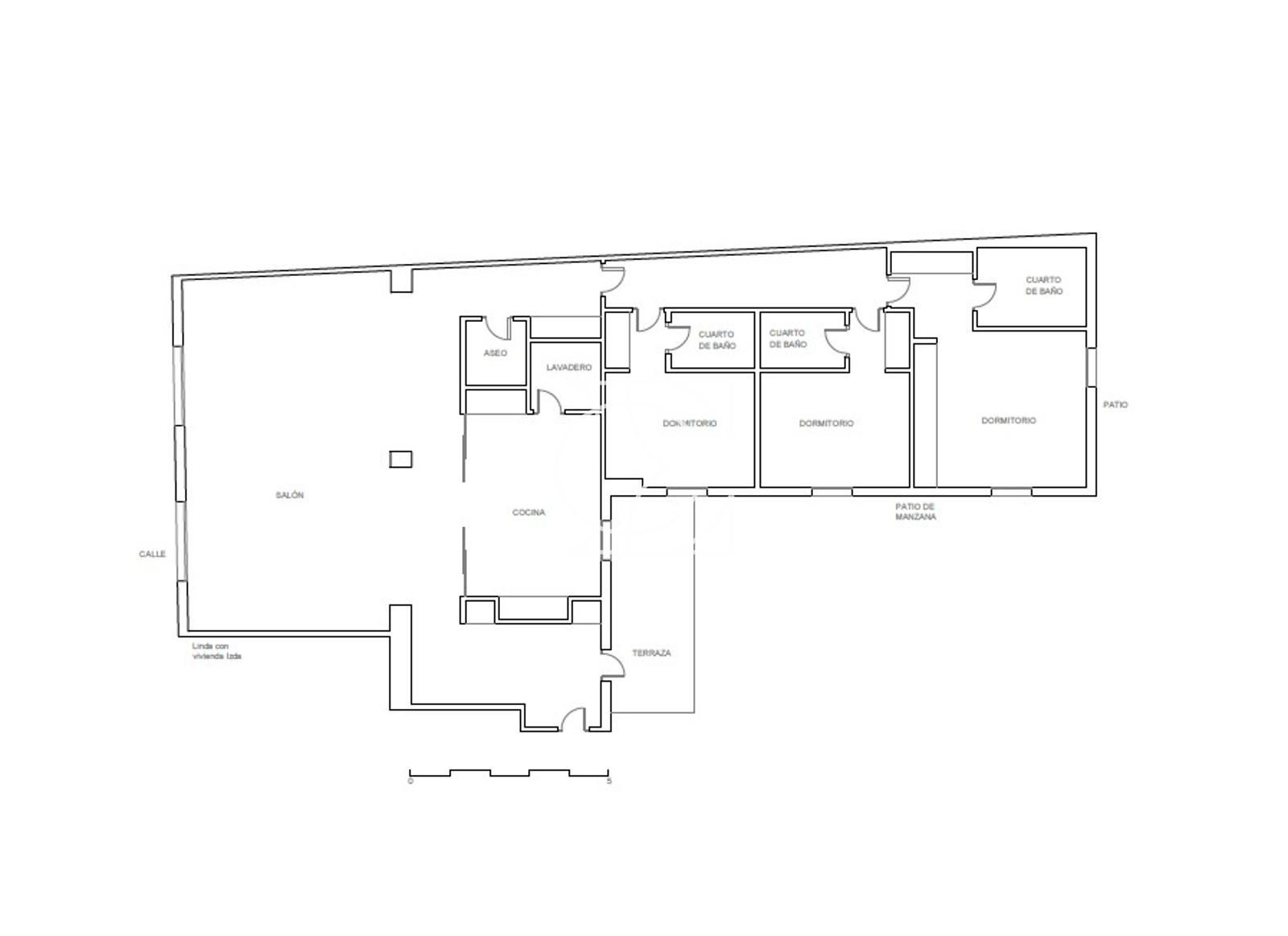
En una de las ubicaciones más exclusivas del Barrio de Salamanca, se encuentra esta sofisticada vivienda de 222 m² construidos (204 m² útiles), con plano disponible, concebida para quienes valoran el diseño, la calidad y la privacidad en el corazón de Madrid.

La propiedad ha sido reformada integralmente con un estilo contemporáneo y materiales de primer nivel. Ofrece tres amplios dormitorios, tres baños completos y un aseo de cortesía, con una distribución equilibrada que garantiza confort y funcionalidad.

El salón-comedor disfruta de grandes ventanales a la calle, aportando una magnífica entrada de luz natural. El resto de estancias se orientan a amplios patios interiores, igualmente luminosos, que aseguran tranquilidad y privacidad.

Ubicada en un edificio representativo con servicio de portería y aparcamiento en el propio edificio, la vivienda dispone además de calefacción individual por gas, aire acondicionado y domótica, ofreciendo un alto nivel de confort durante todo el año.

Una propiedad exclusiva que combina ubicación privilegiada, diseño impecable y servicios premium en una de las zonas más emblemáticas de la ciudad.

Características
Precio Venta 4.500.000 €
Precio/m² 20.089
Precio Alquiler 11.000 €/mes
Año de construcción 1950
Construidos 224 m2
Útiles 204 m2
Dormitorios 3
Baños 3
Cocina Amueblada
Terraza
Estado Impecable
Garaje
Calificación Energética En trámite
Conserje
Escalas de eficiencia



Tu agente
Maria Isabel Esquivel
Contáctanos

Si deseas más información sobre esta propiedad, por favor, rellena el formulario.

 Sí, he leído y/o acepto las Condiciones de uso y la Política de privacidad
Inmuebles similares:
 
3.990.000 €
Ref. 1335  5  5
Piso en venta en Madrid, con 252 m2, 5 habitaciones y 5 baños, Trastero y Aire acondicionado.
 
3.800.000 €
Ref. 1318  243 m2  4  5

Hall de entrada, cocina totalmente equipada, salón-comedor, aseo de visitas, 4 dormitorios de los cuales 2 tienen cuarto de baño propio y los otros 2 comparten un cuarto de baño. Portero