Ficha
Piso en Ibiza con Lope de Rueda 1º planta
Madrid (Zona Ibiza) - REF. 1330

4

4

1
venta: 2.250.000 €
Descripción

En una de las ubicaciones más exclusivas del barrio de Ibiza, en la calle Ibiza con Lope de Rueda y a escasos metros del Parque del Retiro, se encuentra esta magnífica vivienda de 192 m² situada en una primera planta de un edificio representativo con portero físico y plaza de parking en la misma finca, un valor excepcional en la zona.

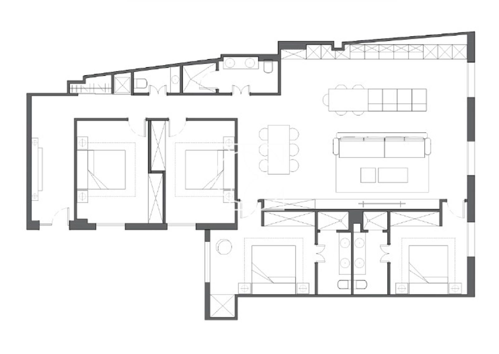
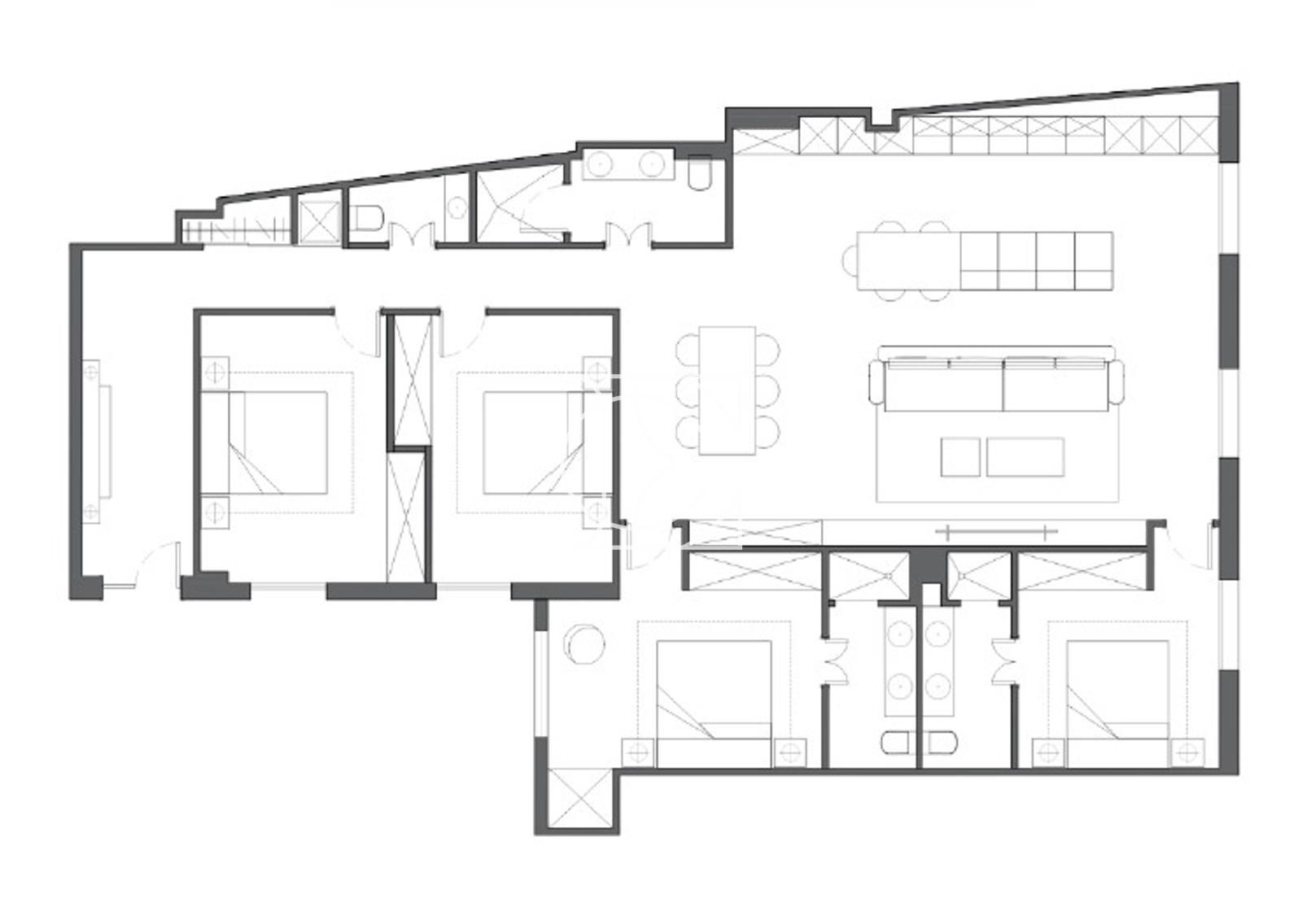
La propiedad se encuentra para reformar, ofreciendo la posibilidad de crear un proyecto a medida con una distribución contemporánea. Actualmente cuenta con cuatro dormitorios y cuatro baños, y se acompaña de un plano con una propuesta de reforma que plantea una zona social amplia y luminosa, además de una cómoda redistribución de los espacios privados.

Una oportunidad única para adquirir una vivienda de gran tamaño en una de las direcciones más cotizadas de Madrid, con la posibilidad de configurarla según las necesidades y el estilo de vida del comprador.

Características
Precio Venta 2.250.000 €
Año de construcción 1983
Útiles 192 m2
Dormitorios 4
Baños 4
Garaje
Calificación Energética En trámite
Conserje
Escalas de eficiencia



Tu agente
Maria Isabel Esquivel
Contáctanos

Si deseas más información sobre esta propiedad, por favor, rellena el formulario.

 Sí, he leído y/o acepto las Condiciones de uso y la Política de privacidad
Inmuebles similares:
 
2.590.000 €
Ref. 1263  150 m2  3  4

Maravillosa finca clásica, piso exterior con hall de entrada, salón-comedor, cocina americana con isla, aseo de visitas, 3 dormitorios 3 cuartos de baño en suite

 
1.900.000 €
Ref. 1341  154 m2  3  3

En Marqués de Monasterio, en pleno Justicia, piso exterior de 154 m² a reformar con 3 dormitorios, 3 baños y 2 balcones en finca clásica. Incluye trastero de 31 m². Excelente oportunidad de inversión en una de las zonas prime de Madrid, presentada por Consulting Esquivel.