Ficha
Ríos Rosas con Modesto Lafuente 3ª planta
Madrid - REF. 1336

167 m2
venta: 1.850.000 €
Descripción

Ríos Rosas con Modesto Lafuente 3ª pta. - Exterior, finca señorial año 1924, a reformar.

Precio: 1.850.000€

Superficie catastral: 167 m² (152 m² vivienda + 15 m²)


Finca clásica con portal señorial, vidrieras en escaleras, techos altos y ascensor de madera original. Vivienda con ocho huecos a la calle (balcones y miradores con balaustradas de piedra), que proporciona mucha luz natural y con distribución versátil. Edificio exclusivo con solo dos vecinos por planta.

Dispone de azotea comunitaria con tumbonas y plantas, ideal para el descanso, con vistas despejadas. La propiedad también cuenta con un trastero. Ubicación rodeada de comercios, restaurantes y espacios culturales, con excelente comunicación por metro y autobús. Propiedad con alto potencial de inversión y revalorización.

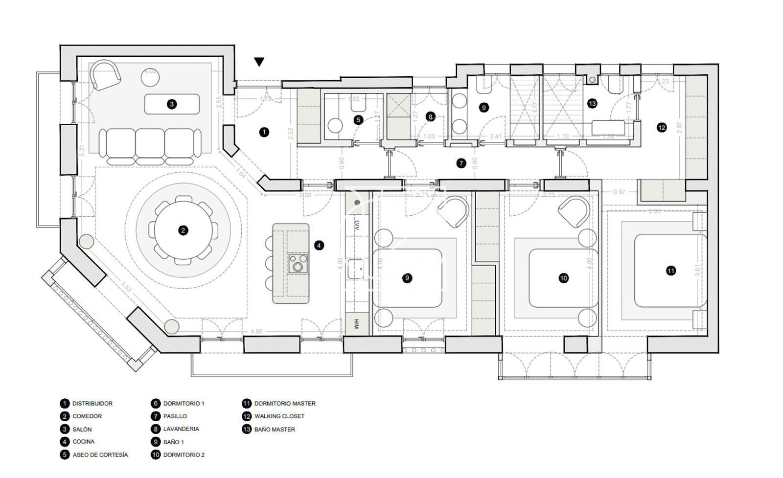
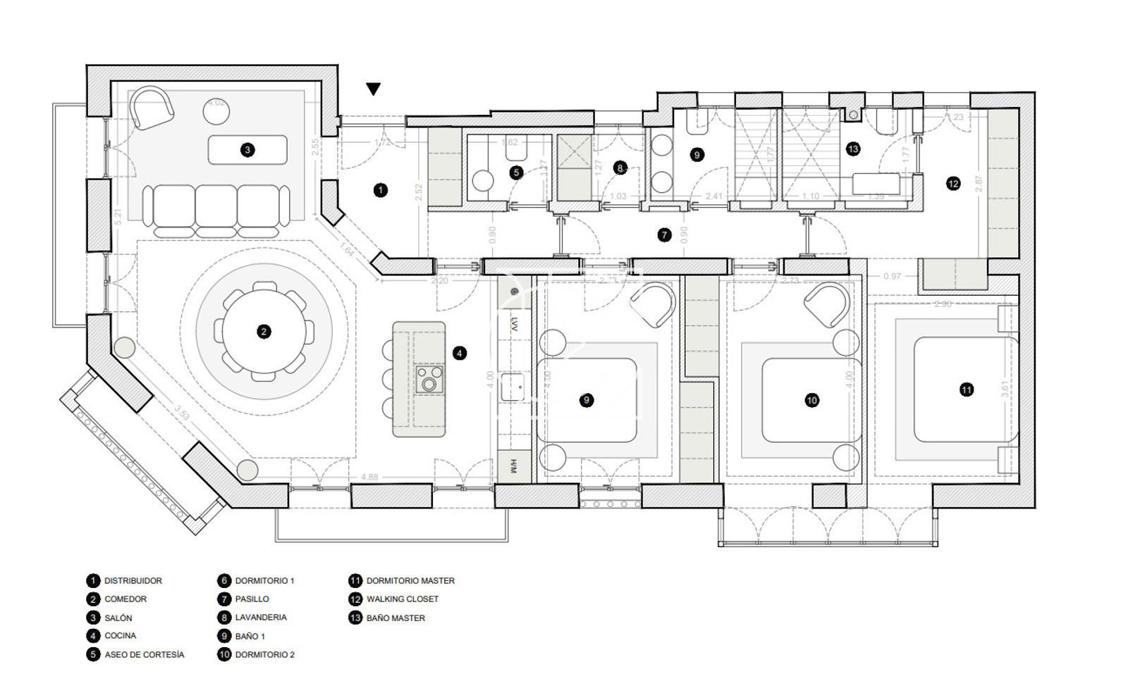
Se adjuntan plano de posible reforma.

Características
Precio Venta 1.850.000 €
Precio/m² 11.078
Año de construcción 1924
Construidos 167 m2
Trastero
Terraza
Estado Para reformar
Zonas comunes
Calificación Energética En trámite
Luz
Escalas de eficiencia



Contáctanos

Si deseas más información sobre esta propiedad, por favor, rellena el formulario.

 Sí, he leído y/o acepto las Condiciones de uso y la Política de privacidad
Inmuebles similares:
 
1.850.000 €
Ref. 1340  125 m2  2  2

Exclusiva vivienda exterior de 125 m² en la calle Lagasca, Barrio de Salamanca – Castellana. Sexta planta con tres balcones y mirador, en finca clásica representativa. Una excelente oportunidad para reformar y crear un elegante pied-à-terre o inversión patrimonial en Madrid prime.

 
1.900.000 €
Ref. 1341  154 m2  3  3

En Marqués de Monasterio, en pleno Justicia, piso exterior de 154 m² a reformar con 3 dormitorios, 3 baños y 2 balcones en finca clásica. Incluye trastero de 31 m². Excelente oportunidad de inversión en una de las zonas prime de Madrid, presentada por Consulting Esquivel.